Ekskluzivna rustikalna vila s bazenom i pogledom na more - u izgradnji
11.250.000 Kn
- Šifra : 02223
- Lokacija : Novigrad
- Površina objekta : 270 m2
- Površina zemljišta : 1010 m2
- Udaljenost od centra : 0 m
- Udaljenost od mora : 9000 m
- Broj katova : 2
- Broj soba : 5
- Broj spavaćih soba : 4
- Broj kupaonica : 4
- Broj wca : 1
- Pogled na more : Da
- Bazen : Da
- Parkiralište : Da
- Ostava : Da
- Godina izgradnje : 2025
- Energ. učinkovitost : Nije određeno
Istra, Novigrad – okolica
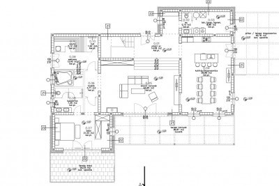
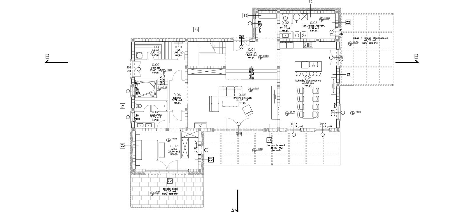
Prodaje se ekskluzivna rustikalna vila površine 270 m², smještena na zemljištu od 1.010 m², na povišenoj lokaciji koja pruža prekrasan pogled na more i dolinu rijeke Mirne.
U prizemlju vile nalazi se ulazni prostor s garderobom, spremište/tehnička soba, wellness prostor s jacuzzijem, saunom i tušem, jedna spavaća soba s vlastitom kupaonicom te prostrani dnevni boravak povezan s kuhinjom i blagovaonicom po otvorenom konceptu. Iz dnevnog dijela izlazi se na terasu, sunčalište i bazen.
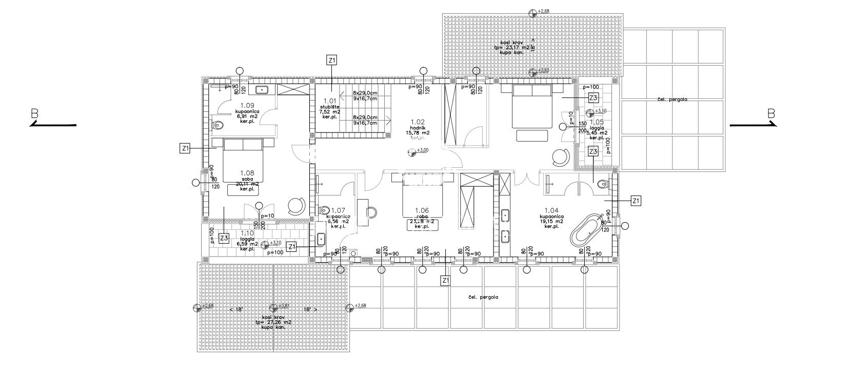
Na prvom katu smještene su tri komforne spavaće sobe, svaka s vlastitom kupaonicom, dok dvije imaju i privatnu terasu.
U dvorištu će se nalaziti skimerski bazen od 45 m² sa sunčalištem, ljetna kuhinja, pergole te tri parkirna mjesta, sve lijepo uređeno mediteranskim biljem.
Vila se gradi visokokvalitetnim materijalima: odlična toplinska izolacija, kamene obloge, PVC stolarija s trostrukim ostakljenjem, vrhunske keramičke pločice — pri čemu kupac u ovoj fazi može birati keramiku po želji. Predviđeno je podno grijanje na dizalicu topline te klimatizacija.
U ovoj fazi gradnje moguće su određene manje prilagodbe tlocrta i unutarnjeg rasporeda prema željama kupca.
Izgradnja je u vlasništvu pravne osobe, te se u slučaju kupnje društva kupcu omogućuje odbitak PDV-a od kupoprodajne cijene, što predstavlja značajnu financijsku prednost.
Ne propustite priliku za svojim domom iz snova u istarskom štihu ili kao sigurnu investiciju.
Razgled nekretnine moguć je uz potpisan ugovor o posredovanju koji je temelj za daljnje postupanje u vezi s kupoprodajom i naplatom provizije sukladno Zakonu o posredovanju u prometu nekretnina. U slučaju kupoprodaje agencijska provizija iznosi 3% + PDV i naplaćuje se prilikom sklapanja predugovora/ugovora o kupoprodaji.
Pogledaj sve Nekretnine Novigrad
NAPOMENA: Ne odgovaramo za eventualne pogreške u opisima nekretnina, ali u istima želimo biti što precizniji i točni.
